Conta Investment vrea să dezvolte o clădire de birouri de 6 etaje, în vechiul cartier al bancherilor din centrul Bucureştiului

02 07. 2020
doamnei_98839300

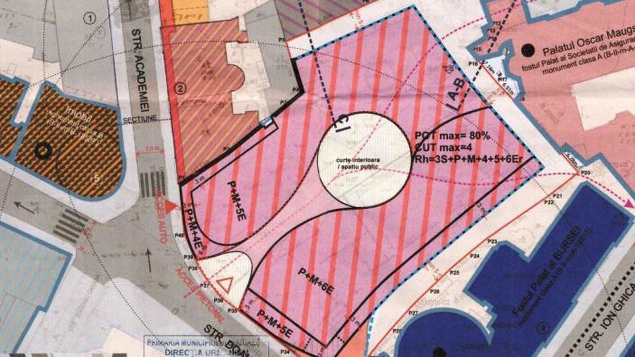
Potrivit documentelor studiate de Economica.net, proiectul va avea un POT de maximum de 80% și un CUT de maximum 4, o înălțime de maximum 32 de metri și e învecinată cu un monument istoric, Cinematograful Doina (inițial Terra), care a fost construit la sfârşitul secolului XIX, a cărui fațadă va fi păstrată şi renovată. Conform proiectului, parterul viitoarei clădiri va fi deschis publicului, iar în interiorul imobilului se va crea un spațiu public accesibil din strada Doamnei.

Proiectul va include, alături de birouri, și servicii, o galerie comercială și un hotel.

Citește și: Planul de relansare economică a României

Compania a achiziţionat înainte de criza din 2008 mai multe imobile vechi din zona strada Doamnei.

“Proiectul ar putea fi început în primăvara anului 2010, în condiţiile în care vor încheia tranzacţia şi vor primi autorizaţia de construire în patru luni. Proiectul cu terenul, la momentul de faţă, este evaluat la circa 4 milioane de euro. În noile condiţii de piaţă, imobilul poate fi construit cu 8 milioane de euro. Valoarea totală ar ajunge, în acest caz, undeva la 14 milioane euro pentru circa 10.000 mp construiţi, 8.000 mp utili. În caz de vânzare, preţul va fi de cel puţin 25 milioane de euro, pentru că este o zonă foarte bună”, spuneau în acea perioadă surse din piaţa imobiliară.

Citește și: Revoluție în RCA

Conta Investment dispunea, în acea vreme, de un Plan Urbanistic Zonal (PUZ) eliberat de Primăria Municipiului Bucureşti, care prevedea construirea unei clădiri cu funcţiune de birouri, comercial sau hotel, ce se va întinde pe cel mult şase etaje. Potrivit analiștilor, imobilul va trebui să păstreze faţada veche a clădirilor existente, pentru că acestea sunt renovate şi se află în centrul istoric.

Conta Investment este cunoscută pentru vânzarea clădirii de birouri Pallazo Italia către fondul german de investiţii GLL Real Estate Partners. Costul de achiziţie a imobilului nu a fost dat publicităţii, însă investiţia în dezvoltarea imobilului a fost de 10 milioane de dolari.