Acest pavilion adăposteşte Secţia clinică de boli infecţioase (HIV/SIDA) adulţi, iar corpul de clădire nu are spaţii suficiente pentru tratarea tuturor pacienţilor, a precizat Tomescu, într-o postare pe Facebook.
Potrivit acestuia, anvelopa clădirii a suferit degradări odată cu trecerea timpului şi există zone, în special la terase, unde sunt probleme cauzate de infiltraţii.
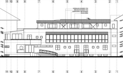
Caietul de sarcini cuprinde extinderea etajului 2, recompartimentarea spaţiilor existente, în vederea reconfigurării, în funcţie de noile necesităţi, anveloparea construcţiei, prin adăugarea unui termosistem, ce va suplimenta închiderile existente care se vor reabilita, refacerea integrală a instalaţiilor.

Totodată, se va realiza un lift exterior cu structură metalică pentru accesul persoanelor cu dizabilităţi, acesta facilitând inclusiv transportul cu targă.
Horia Tomescu a menţionat că durata estimată a contractului va fi de 14 luni de la dată semnării.
El a adăugat că, prin această investiţie, municipalitatea va creşte accesibilitatea pacienţilor diagnosticaţi cu HIV şi va spori calitatea serviciilor medicale prestate de secţia de specialitate de la Spitalul „Dr. Victor Babeş”.
Sursa foto: Facebook.com/Horia.Tomescu.USRPLUS