Conta Investment vrea să dezvolte o clădire de birouri de 6 etaje, în vechiul cartier al bancherilor din centrul Bucureştiului

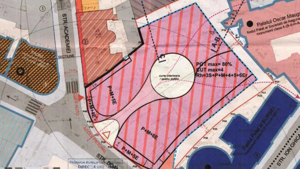
Conta Investment, companie cu 18 acționari, cei mai mari fiind, conform Termene.ro, Fiduciara Vicentina (Italia), cu 34%, Denner (Irlanda), cu 21,8% și Hampton Holdings (Marea Britanie) cu 9,6%, a solicitat PMB aprobarea unui PUZ pentru un imobil de birouri de maximum 6 etaje, amplasat pe strada Doamnei, în apropiere de Palatul Bursei și Palatul Oscar Maugsch și peste drum de sediul BNR, în vechiul cartier bancar al Bucureștiului.
Răzvan Zamfir - J, 02 iul. 2020, 18:24
Conta Investment vrea să dezvolte o clădire de birouri de 6 etaje, în vechiul cartier al bancherilor din centrul Bucureştiului

Potrivit documentelor studiate de Economica.net, proiectul va avea un POT de maximum de 80% și un CUT de maximum 4, o înălțime de maximum 32 de metri și e învecinată cu un monument istoric, Cinematograful Doina (inițial Terra), care a fost construit la sfârşitul secolului XIX, a cărui fațadă va fi păstrată şi renovată. Conform proiectului, parterul viitoarei clădiri va fi deschis publicului, iar în interiorul imobilului se va crea un spațiu public accesibil din strada Doamnei.

Proiectul va include, alături de birouri, și servicii, o galerie comercială și un hotel.

Citește și: Planul de relansare economică a României

Compania a achiziţionat înainte de criza din 2008 mai multe imobile vechi din zona strada Doamnei.

“Proiectul ar putea fi început în primăvara anului 2010, în condiţiile în care vor încheia tranzacţia şi vor primi autorizaţia de construire în patru luni. Proiectul cu terenul, la momentul de faţă, este evaluat la circa 4 milioane de euro. În noile condiţii de piaţă, imobilul poate fi construit cu 8 milioane de euro. Valoarea totală ar ajunge, în acest caz, undeva la 14 milioane euro pentru circa 10.000 mp construiţi, 8.000 mp utili. În caz de vânzare, preţul va fi de cel puţin 25 milioane de euro, pentru că este o zonă foarte bună”, spuneau în acea perioadă surse din piaţa imobiliară.

Citește și: Revoluție în RCA

Conta Investment dispunea, în acea vreme, de un Plan Urbanistic Zonal (PUZ) eliberat de Primăria Municipiului Bucureşti, care prevedea construirea unei clădiri cu funcţiune de birouri, comercial sau hotel, ce se va întinde pe cel mult şase etaje. Potrivit analiștilor, imobilul va trebui să păstreze faţada veche a clădirilor existente, pentru că acestea sunt renovate şi se află în centrul istoric.

Conta Investment este cunoscută pentru vânzarea clădirii de birouri Pallazo Italia către fondul german de investiţii GLL Real Estate Partners. Costul de achiziţie a imobilului nu a fost dat publicităţii, însă investiţia în dezvoltarea imobilului a fost de 10 milioane de dolari.

Te-ar mai putea interesa și
Christine Lagarde (BCE): Dacă ne aşteptăm ca rata inflaţiei să devieze semnificativ şi persistent de ţintă, răspunsul trebuie să fie corespunzător de puternic sau persistent
Christine Lagarde (BCE): Dacă ne aşteptăm ca rata inflaţiei să devieze semnificativ şi persistent de ţintă, răspunsul ...
Preşedintele Băncii Centrale Europene, Christine Lagarde, a avertizat participanţii la conferinţa de vineri a Fondului Monetar Internaţional în privinţa riscurilor la adresa inflaţiei în......
Consiliul Local a votat bugetul de 1,35 de miliarde de lei a municipiului Baia Mare. Potrivit primarului, accentul este pus pe investiții
Consiliul Local a votat bugetul de 1,35 de miliarde de lei a municipiului Baia Mare. Potrivit primarului, accentul este pus ...
Bugetul municipiului Baia Mare, în valoare de 1,35 de miliarde de lei, a fost, vineri, aprobat de Consiliul Local şi va ...
Cotațiile la grâu cresc, în contextul temerilor privind vremea nefavorabilă și a reducerii aprovizionării cu îngrășăminte
Cotațiile la grâu cresc, în contextul temerilor privind vremea nefavorabilă și a reducerii aprovizionării cu îngrășăminte
Cotaţiile la grâu se îndreaptă spre cel mai mare avans săptămânal din ultimele aproape două luni, în condiţiile ...
Bursa de la București a închis în scădere ședința de tranzacționare de vineri. Rulajul a depășit 134 de milioane de lei
Bursa de la București a închis în scădere ședința de tranzacționare de vineri. Rulajul a depășit 134 de milioane de lei
Bursa de Valori Bucureşti (BVB) a închis în scădere ultima şedinţă de tranzacţionare din această săptămână, ...